Wellingtonnorthland

powered by Open2view.com

51 Milne Terrace

Wellington
4
2
N/A
160sqm
483sqm
51 Milne Terrace Wellington
proudly marketed by
Lowe & Co Realty
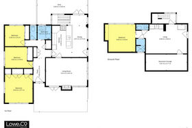
Split-Level Living with Sun, Space & Sea Air
Positioned for sun and privacy with big sky views north west over the Island Bay hills, this spacious four-bedroom home offers flexible family living in one of Wellington's most beloved coastal suburbs. With a layout ideal for growing teens, extended family, or even Air BnB income, it's a smart move for families wanting both comfort and potential. - Four bedrooms across two levels, including a downstairs bedroom with its own rumpus and bathroom with separate access - ideal for teenagers, guests, or extra income. - Light-filled eat-in kitchen and a separate lounge flowing to a deck, ideal for morning coffee. Second north-facing deck off the kitchen/dining with a lovely outlook and all-day sun - Ducted gas central heating and a ventilation system for year-round warmth and comfort - Two bathrooms (main plus downstairs shower room) and a separate WC for family ease - Mature gardens offering plenty of potential for your green thumbs - whether it be veggie patch, herbs, fruit trees... maybe additional landscaping... or all the above! - Totally livable as-is with scope to upgrade and add value over time as you desire - RV $1,160,000 - Rates $8,027.15pa - BEO $989,000 Tender Closing 12pm, Thursday 19th February 2026 at 8 Kent Terrace, Wellington (The vendor will NOT consider offers prior to the deadline) My vendor has loved raising her family in this home for over 13 years. Offering versatility, sun and a sought-after Island Bay lifestyle close to the beach, this is a home that will grow with your family's needs. Come check it out at Sunday's open home. Source of information: Property Guru, Nexus, Wellington City Council (non-verified).
Question
Location
Upload by David Garratt
Wellington Central/North